Rapid SL - stelaż podtynkowy do montażu WC ściennego ze wspornikami w komplecie 38536001 GROHE
Produkt niedostępny
Pomoc w doborze
Bezpieczne zakupy
Na rynku od 2007 roku
Opieka posprzedażowa
Opis produktu
Opinie (0)
Opis produktu
Producent
Kod produktu
4005176863929
Chcesz w elegancki i wygodny sposób umiejscowić na ścianie misę toaletową? Stelaż podtynkowy GROHE Rapid SL 2 in 1 ułatwi Ci to zadanie! Wyposażony w system szybkiego montażu QuickFix®, pozwoli zmniejszyć czas instalacji nawet o połowę! Wszystkie nasze stelaże przed wprowadzeniem ich do działu sprzedaży, zostały poddane restrykcyjnym testom, które wykazały pozytywny wynik oraz możliwość udźwigu nawet 400kg. Teraz masz pewność, że Twoja rodzina jest bezpieczna w łazience. Konstruując GROHE Rapid SL nasi inżynierowie zadbali również o to, aby zużycie wody było mniejsze nawet o 50%. Za sprawą pneumatycznego spłukiwania i funkcji Start/Stop zatrzymasz przepływ wody poprzez ponowne naciśnięcie przycisku uruchamiającego. Nasz stelaż został tak zaprojektowany, aby hałas powstały w wyniku spłukiwania wody nie był przenoszony do innych pomieszczeń Twojego domu. Dlatego wyposażenie spłuczki w technologie Whisper® to gwarancja minimalnego poziomu hałasu niczym szept.
Rapid SL do WC ściennego spłuczka do WC
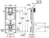
z małym otworem rewizyjnym wysokość zabudowy 1,13 m
do montażu przyściennego lub montażu w ścianie szkieletowej
rama stalowa, powlekana proszkowo, samonośna
do suchej zabudowy, kompletny montaż wstępny
ustalone przyłącza do obiektu do montażu pojedynczego lub szynowego
z szybką regulacją i blokadą wysokości materiał mocujący
kontrola TÜV 2 sworznie mocujące WC mocowanie ceramiki
rozstaw śrub 180/230 mm kolanko odpływowe z polietylenu DN 80
regulacja głębokości zabudowy kształtka redukcyjna DN 80/100
zestaw dopływowy i odpływowy spłuczka do WC, 6 - 9 l
ustawienie fabryczne 6l i 3l pneumatyczny zawór odpływowy z 3
funkcjami: 2-pojemn., Start/Stop lub bez przerywania
przyłącze wodne z lewej / prawej lub od tyłu armatura I klasy głośności kontrola DIN
izolowana przeciwroszeniowo przyłącze wodne " z wbudowanym zaworem kątowym i przyłączem
instalacja beznarzędziowa z akcesoriami do montażu przyściennego
Rapid SL do WC ściennego spłuczka do WC
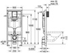
z małym otworem rewizyjnym wysokość zabudowy 1,13 m
do montażu przyściennego lub montażu w ścianie szkieletowej
rama stalowa, powlekana proszkowo, samonośna
do suchej zabudowy, kompletny montaż wstępny
ustalone przyłącza do obiektu do montażu pojedynczego lub szynowego
z szybką regulacją i blokadą wysokości materiał mocujący
kontrola TÜV 2 sworznie mocujące WC mocowanie ceramiki
rozstaw śrub 180/230 mm kolanko odpływowe z polietylenu DN 80
regulacja głębokości zabudowy kształtka redukcyjna DN 80/100
zestaw dopływowy i odpływowy spłuczka do WC, 6 - 9 l
ustawienie fabryczne 6l i 3l pneumatyczny zawór odpływowy z 3
funkcjami: 2-pojemn., Start/Stop lub bez przerywania
przyłącze wodne z lewej / prawej lub od tyłu armatura I klasy głośności kontrola DIN
izolowana przeciwroszeniowo przyłącze wodne " z wbudowanym zaworem kątowym i przyłączem
instalacja beznarzędziowa z akcesoriami do montażu przyściennego
| Producent | GROHE |
|---|---|
| Marka | GROHE |
| Typ produktu | STELAŻ |
| Seria produktu | Rapid SL |
| Głębokość | 160 mm |
| Konstrukcja samonośna | tak |
| Maks. ilość wody spłukującej | 9 l |
| Min. ilość wody spłukującej | 3 l |
| Przyłącze wody | Gwint wewnętrzny |
| Regulowana wysokość WC | nie |
| Rozmiar gwintu przyłącza wody (w calach) | 1/2 cala |
| Sposób spłukiwania | Dwie objętości |
| Wysokość | 1300 mm |
| Średnica zewnętrzna przyłącza wody | # mm |
| Średnica zewnętrzna rury odpływowej | 90 mm |
Opinie (0)
Napisz swoją opinię
Zapytaj o produkt
