Rapid SL, stelaż podtynkowy do WC 5w1 Cosmopolitan z zaworem AV1 6/9l 38827000 GROHE
Produkt niedostępny
Pomoc w doborze
Bezpieczne zakupy
Na rynku od 2007 roku
Opieka posprzedażowa
Opis produktu
Opinie (0)
Opis produktu
Producent
Kod produktu
4005176870477
GROHE Rapid SL 5w1 to najszybszy z dostępnych na rynku sposobów na montaż ściennej WC. W jego skład wchodzą wszystkie niezbędne elementy, dzięki czemu otrzymujesz w pełni kompletny, gotowy do instalacji produkt. Podstawą całego systemu jest wytrzymała stalowa rama o nośności do 400 kg, która gwarantuje wysoką stabilność i wytrzymałość przez lata użycia. Do ściany przymocujesz ją za pomocą 2 samopoziomujących kątowników, umożliwiających bezstopniową regulację głębokości montażu. Zadbano również o zapewnienie komfortu akustycznego w łazience, poprzez dodanie do zestawu specjalnej maty wygłuszającej, która tłumi dźwięki tarcia ceramiki o ścianę. Znajdziesz w nim także elegancki przycisk spłukujący GROHE Skate Cosmopolitan, zachwycający starannym wykonaniem i powłoką z odpornego na uszkodzenia chromu GROHE StarLight oraz zestaw adaptacyjny GROHE Fresh, który umożliwia sprawne i przede wszystkim higieniczne umieszczanie kostki odświeżającej w spłuczce. Wybierz niezawodność i wygodę, jaką zapewnia system instalacyjny GROHE Rapid SL 5w1 i już dziś zamontuj go w swojej łazience!
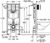
Spłuczka do WC z małym otworem rewizyjnym wysokość zabudowy 1,13 m do montażu przyściennego lub montażu
w ścianie szkieletowej rama stalowa, powlekana proszkowo, samonośna
do suchej zabudowy, kompletny montaż wstępny ustalone przyłącza do obiektu do montażu pojedynczego lub szynowego
z szybką regulacją i blokadą wysokości materiał mocujący kontrola TÜV
2 sworznie mocujące WC mocowanie ceramiki rozstaw śrub 180/230 mm
kolanko odpływowe z polietylenu DN 80 regulacja głębokości zabudowy
kształtka redukcyjna DN 80/100 zestaw dopływowy i odpływowy
spłuczka do WC, 6 - 9 l ustawienie fabryczne 6l i 3l
pneumatyczny zawór odpływowy z 3 funkcjami: 2-pojemn., Start/Stop
lub bez przerywania przyłącze wodne z lewej / prawej lub od tyłu
armatura I klasy głośności kontrola DIN izolowana przeciwroszeniowo
przyłącze wodne " z wbudowanym zaworem kątowym i przyłączem
instalacja beznarzędziowa z akcesoriami do montażu przyściennego
z GROHE Fresh zestaw wymienny wyłącznie do tabletek
bez zawartości chloru z płytką pokrywającą Skate Cosmopolitan
do uruchomienia 2-pojemnościowego lub Start/Stop
montaż pionowy i poziomy 156 x 197 mm chrom z ABS powłoka chromowa z GROHE StarLight
WC z zestawem wyciszającym
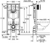
Spłuczka do WC z małym otworem rewizyjnym wysokość zabudowy 1,13 m do montażu przyściennego lub montażu
w ścianie szkieletowej rama stalowa, powlekana proszkowo, samonośna
do suchej zabudowy, kompletny montaż wstępny ustalone przyłącza do obiektu do montażu pojedynczego lub szynowego
z szybką regulacją i blokadą wysokości materiał mocujący kontrola TÜV
2 sworznie mocujące WC mocowanie ceramiki rozstaw śrub 180/230 mm
kolanko odpływowe z polietylenu DN 80 regulacja głębokości zabudowy
kształtka redukcyjna DN 80/100 zestaw dopływowy i odpływowy
spłuczka do WC, 6 - 9 l ustawienie fabryczne 6l i 3l
pneumatyczny zawór odpływowy z 3 funkcjami: 2-pojemn., Start/Stop
lub bez przerywania przyłącze wodne z lewej / prawej lub od tyłu
armatura I klasy głośności kontrola DIN izolowana przeciwroszeniowo
przyłącze wodne " z wbudowanym zaworem kątowym i przyłączem
instalacja beznarzędziowa z akcesoriami do montażu przyściennego
z GROHE Fresh zestaw wymienny wyłącznie do tabletek
bez zawartości chloru z płytką pokrywającą Skate Cosmopolitan
do uruchomienia 2-pojemnościowego lub Start/Stop
montaż pionowy i poziomy 156 x 197 mm chrom z ABS powłoka chromowa z GROHE StarLight
WC z zestawem wyciszającym
| Producent | GROHE |
|---|---|
| Marka | GROHE |
| Typ produktu | STELAŻ |
| Seria produktu | Rapid SL |
| Głębokość | 160 mm |
| Konstrukcja samonośna | tak |
| Maks. ilość wody spłukującej | 9 l |
| Min. ilość wody spłukującej | 3 l |
| Przyłącze wody | Gwint wewnętrzny |
| Regulowana wysokość WC | nie |
| Rozmiar gwintu przyłącza wody (w calach) | 1/2 cala |
| Sposób spłukiwania | Dwie objętości |
| Wysokość | 1300 mm |
| Średnica zewnętrzna przyłącza wody | # mm |
| Średnica zewnętrzna rury odpływowej | 90 mm |
Opinie (0)
Napisz swoją opinię
Zapytaj o produkt
