Rapid SL - stelaż podtynkowy do WC wiszącej 38526000 GROHE
Produkt niedostępny
Pomoc w doborze
Bezpieczne zakupy
Na rynku od 2007 roku
Opieka posprzedażowa
Opis produktu
Opinie (0)
Opis produktu
Producent
Kod produktu
4005176291050
Chcesz zaprojektować nowoczesną łazienkę z podwieszaną misą toaletową? Postaw na GROHE Rapid SL. Dzięki temu solidnemu stelażowi podtynkowemu, z łatwością zamontujesz wybraną ceramikę, nawet o połowę szybciej w porównaniu do konkurencyjnych rozwiązań. Jest to zasługą systemu GROHE QuickFix, który znacznie skraca czas prac instalacyjnych. Inżynierowie GROHE gwarantują również nośność ramy montażowej do 400 kg, co zapewnia najwyższy poziom bezpieczeństwa i stabilności. Zadbano również o ochronę środowiska naturalnego i jego cennych zasobów, projektując oszczędnościową technologię GROHE EcoJoy. Redukuje ona konsumpcje wody nawet o 50%, bez utraty wydajności spłukiwania. Nie musisz się także obawiać, że jego głośny przepływ będzie budził wszystkich domowników ze snu. Za sprawą technologii GROHE Whisper, spuszczanie wody jest tak ciche, jak subtelny szept. Możesz zatem zamontować stelaż Rapid SL nawet na ścianie sąsiadującej z sypialnią dzieci, bez obaw o ich spokojny sen. W zależności od potrzeb możesz użyć kątowników ściennych (3855800M, sprzedawane osobno) z bezstopniową regulacją wysokości.
Ze spłuczką do WC 6 - 9 l
Do montażu przyściennego lub montażu w ścianie szkieletowej
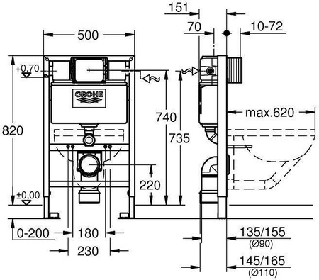
Wysokość zabudowy 0,82 m
Rama stalowa, powlekana proszkowo, samonośna
Do suchej zabudowy, kompletny montaż wstępny
Ustalone przyłącza do obiektu
Do montażu pojedynczego lub szynowego
Z szybką regulacją i blokadą wysokości
Materiał mocujący
Kontrola TÜV
2 sworznie mocujące WC
Mocowanie ceramiki
Rozstaw śrub 180/230 mm
Kolanko odpływowe z polietylenu DN 80
Regulacja głębokości zabudowy
Kształtka redukcyjna DN 80/100
Zestaw dopływowy i odpływowy
Spłuczka do WC, 6 - 9 l
Pneumatyczny zawór odpływowy z 3
Funkcjami: 2-pojemn., Start/Stop lub bez przerywania
Uruchamianie z przodu lub z góry
Przyłącze wodne z lewej / prawej lub od tyłu
Armatura I klasy głośności
Zawnioskowany znak kontrolny
Izolowana przeciwroszeniowo
Przyłącze wodne " z wbudowanym
Zaworem kątowym i przyłączem
Skracana puszka rewizyjno-ochronna
Bez wyposażenia do montażu przyściennego
Bez przycisku uruchamiającego
GROHE EcoJoy technologia dla
Zmniejszenia zużycia wody
Ze spłuczką do WC 6 - 9 l
Do montażu przyściennego lub montażu w ścianie szkieletowej
Wysokość zabudowy 0,82 m
Rama stalowa, powlekana proszkowo, samonośna
Do suchej zabudowy, kompletny montaż wstępny
Ustalone przyłącza do obiektu
Do montażu pojedynczego lub szynowego
Z szybką regulacją i blokadą wysokości
Materiał mocujący
Kontrola TÜV
2 sworznie mocujące WC
Mocowanie ceramiki
Rozstaw śrub 180/230 mm
Kolanko odpływowe z polietylenu DN 80
Regulacja głębokości zabudowy
Kształtka redukcyjna DN 80/100
Zestaw dopływowy i odpływowy
Spłuczka do WC, 6 - 9 l
Pneumatyczny zawór odpływowy z 3
Funkcjami: 2-pojemn., Start/Stop lub bez przerywania
Uruchamianie z przodu lub z góry
Przyłącze wodne z lewej / prawej lub od tyłu
Armatura I klasy głośności
Zawnioskowany znak kontrolny
Izolowana przeciwroszeniowo
Przyłącze wodne " z wbudowanym
Zaworem kątowym i przyłączem
Skracana puszka rewizyjno-ochronna
Bez wyposażenia do montażu przyściennego
Bez przycisku uruchamiającego
GROHE EcoJoy technologia dla
Zmniejszenia zużycia wody
| Producent | GROHE |
|---|---|
| Marka | GROHE |
| Typ produktu | STELAŻ |
| Seria produktu | Rapid SL |
| Certyfikat KIWA | tak |
| Do napędu elektrycznego | nie |
| Do napędu pneumatycznego | tak |
| Do uruchamiania od góry (w półce) | tak |
| Do uruchamiania od przodu | tak |
| Gatunek materiału zbiornika spłuczki | Polipropylen (PP) |
| Głębokość | 135 ... 230 mm |
| Konstrukcja samonośna | tak |
| Maks. ilość wody spłukującej | 9 l |
| Materiał | Stal |
| Materiał zbiornika spłuczki | Tworzywo sztuczne |
| Min. ilość wody spłukującej | 3 l |
| Min. wysokość półki | 820 mm |
| Obsługa ręczna | tak |
| Podkładka pod zbiornikiem | nie |
| Przyłącze wody | Inne |
| Regulowana głębokość | tak |
| Regulowana ilość wody spłukującej | tak |
| Regulowana szerokość | nie |
| Regulowana wysokość | tak |
| Regulowana wysokość WC | nie |
| Rozmiar gwintu przyłącza wody (w calach) | 1/2 cala |
| Sposób spłukiwania | Dwie objętości |
| Szerokość | 500 ... 500 mm |
| Ustawienie fabryczne ilość wody spłukującej | tak |
| Wysokość | 820 ... 1020 mm |
| Z armaturą przyłącza i odpływu | tak |
| Z elementami mocującymi | nie |
| Z kolanem odpływowym | tak |
| Z materiałem montażowym miski WC | tak |
| Z zaworem odcinającym | tak |
| Z zestawem do izolacji akustycznej | nie |
| Zabezpieczenie powierzchni | Powlekanie |
| Średnica zewnętrzna przyłącza wody | # mm |
| Średnica zewnętrzna rury odpływowej | 90 mm |
Opinie (0)
Napisz swoją opinię
Zapytaj o produkt
